VINHOMES CỔ LOA - GLOBAL GATE
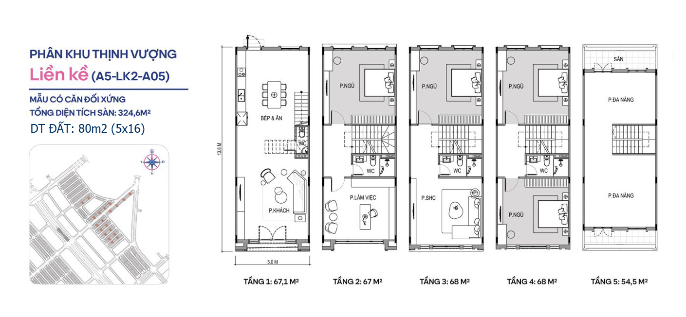
Phân khu THỊNH VƯỢNG
- - - - -
NHÀ PHỐ NGÔI SAO 6
VIEW TRỰC DIỆN CÔNG VIÊN
Hướng: Đông Nam
Diện tích đất: 80 m2
Mặt tiền: 5m (5x16)
Diện tích sàn XD: 321 m2 (5 tầng)
- SHOP CHÂN ĐẾ GLOBAL GATE
- CÁC LOẠI DIỆN TÍCH TẠI VINHOMES GLOBAL GATE
- PHÂN KHU TINH HOA
- THỊNH VƯỢNG
- CÁT TƯỜNG Global Gate
- 05 MÔ HÌNH KINH DOANH TẠI GLOBAL GATE
- TMDV GLOBAL GATE
- SHOP CHÂN ĐẾ Vinhomes GLOBAL GATE
- SHOP CHÂN ĐẾ ZEN PARK
- Shop CHÂN ĐẾ PAVILION
- SHOP CHÂN ĐẾ BEVERLY
- SHOP CHÂN ĐẾ ZURICH
- Shop chân đế Senique
- Shop chân đế THE PARIS Ocean Park 1
- Shop chân đế LONDON
- SHOP MASTERI Ocean Park
- NGỌC TRAI-OCEAN PARK
- SAO BIỂN - OCEAN PARK
- SAN HÔ - OCEAN PARK
- HẢI ÂU - OCEAN PARK
- SHOP TMDV OCEAN PARK
- SHOP CHÂN ĐẾ KHU S1
- SHOP CHÂN ĐẾ KHU S2
- CHO THUÊ SHOPHOUSE
- SHOPHOUSE TIMESCITY